Jeff Sherman

The Magnolia

$35,000

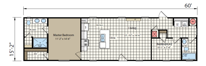
Search | 910 Square Feet | Size 60' (L) X 15' (W) | 2 Bedrooms | 2 Bathrooms

1 / 10
By providing my phone number to Jeff Sherman Tiny Homes, I agree and acknowledge that Jeff Sherman Tiny Homes may send text messages to my wireless phone number for any purpose. Message and data rates may apply.

Make an Inquiry

Have questions? We're here to help you find your perfect home.